1. 서 론
2. 굴착지반 위험도 분석
3. 굴착현장의 계측 비용 및 사고 비용 산출
3.1 굴착현장의 계측 비용 산출
3.2 굴착공사 사고 시 공사기간 및 공사비용 산정
3.3 사고 비용과 계측 비용 상관관계 분석
4. 결 론
1. 서 론
최근 산업화의 급속화에 따라 도심지의 포화도는 높아지고, 도심지 내의 공사는 더깊이, 대규모로 진행되고 있다. 지하공사를 위한 벽체 공법으로 Sheet Pile, S.C.W., C.I.P. 등 다양한 공법을 사용하고 있으며, 벽체 지지공법으로서 Strut, IPS, IU공법 등 다양한 공법들이 사용 및 개발되고 있으나, 지하 굴착깊이가 깊어짐에 따라 지하수 누출 및 토사유출 발생 등 현장의 위험성이 증대되고 있다(Lee et al., 2019). 굴착공사 시 현장에서 수동계측 및 자동계측을 통해 흙막이 벽체에 대한 안전관리를 진행하고 있지만, 계측 후 검토 및 보고서 작성 등 현장에 보고되기까지 7~10일의 시간이 소요된다(SIT, 2020). 이러한 안전관리 공백기간 중 상재압 증가, 지지 구조물의 성능 저하 등으로 발생하는 벽체의 안정성 저하를 실시간으로 확인할 수 없으며, 또한 최근 게릴라성 집중호우로 인한 피해사례가 종종 발생됨에 따라 사고를 야기할 수 있다(Won et al., 2020).
지하안전관리에 관한 특별법 개정으로 굴착공사에 대한 안전관리를 진행하고 있으나, 굴착심도 10m 미만의 중소현장에서는 적용되지 않는다. 중소현장에서는 계측비용 부담으로 인해 수동계측을 주로 수행하고 있으나, 수동계측은 해당 계측에 대해서만 유효성을 가진다(Kim et al., 2012). 또한 계측공백으로 인해 사고를 유발할 수 있으며, 사고발생 시 더 큰 비용부담이 발생될 수 있다. 계측기의 발전으로 수동계측에서 자동계측, 자동계측에서 무선계측으로 변화하고 있으며, IT 통신으로의 무선계측은 배선 및 통신 케이블 등 다양한 요소를 배재시킬 수 있으므로, 자동 계측에 비해 합리적인 비용으로 계측업무를 수행할 수 있다(Han, 2022).
계측관리비는 공사에 직접적으로 관여하는 비용보다는 안전관리의 비용으로 산정해야 한다. 계측관리 비용은 매우 소액으로 책정되고 있으며, 하도급 단계를 거쳐 낮은 단가로 수주하여 현실에 맞지않는 부족한 금액으로 부실계측과 부실관리를 발생시켜 흙막이 사고를 발생시키고 있다(Kim, 2020). 건축건설, 도로신설 등 이외에 부대하여 해당 공사를 현장 내에서 행하는 공사 종류를 일반건설공사(갑)으로 분류하고 있다(Ministry of Employment and Labor, 2022). 공사를 직접 진행하는 시공사는 일반건설공사(갑)에 속하며 기준금액 5,349,000원을 기초액으로 총공사비용의 1.86 ~ 3.09% 증액하여 안전관리비용을 산정하고 있다(Table 1). 시공 중 계측을 통한 현장관리의 중요성은 높으나, 현장에서의 총 공사비 대비 계측비용은 1%로 매우 낮게 측정하고 있다(Woo, 2023). 이에 따라 본 논문은 가상의 공사현장을 대상으로 공사비를 산정하고 소규모, 중규모, 대규모 사고 발생 시 비용을 산정하여 계측 종류별 비율을 계상하고, 계측의 중요성을 제언하고자 한다.
Table 1.
Inclinometer used for manual measurement (Ministry of Employment and Labor, 2022)
2. 굴착지반 위험도 분석
건설공사 안전관리 종합정보망(CSI, 2023)은 공사목적물, 주변 건축물, 가설 구조물 등의 안전과 작업자들의 안전을 저해하는 발생 가능한 위험요소(Hazard)에 대한 통계를 제공한다. 위험요소는 잠재적으로 재해를 일으킬 수 있는 직접적인 요소인 위험발생 객체, 잠재적 재해 위험이 높은 장소인 위험발생 위치, 작업 프로세스 중 목적물이나 가시설이 무너지는 경우 재해를 발생시킬 수 있는 요인인 작업 프로세스에 대해 분석되었다. Fig. 1(a)와 같이 공종별로 토목 공법을 17가지로 분류하여 위험요소를 제시되었으며, 총 35,389건의 위험요소 중 임시구조물에 대한 공정이 13,254건으로 가장 높게 분석되었다. 임시구조물 공정을 Fig. 1(b)와 같이 크레인, 시스템동바리, 안전시설물, 비계, 흙막이 가시설 총 5개의 공법으로 정의할 수 있으며, 그 중 흙막이가시설이 임시구조물에 대한 13,254건의 위험요소 중 8,721건으로 위험요소가 가장 많은 것으로 분석되었다. 즉 토목공사 중 흙막이 가시설에 대한 위험요소가 전체공정 중에서 가장 위험한 공정임을 확인할 수 있다. 본 연구는 가장 위험하다고 판단된 흙막이 벽체에 대해 사고 발생 시 복구 비용, 재시공 비용과 계측 비용의 관계를 분석하였다.
3. 굴착현장의 계측 비용 및 사고 비용 산출
3.1 굴착현장의 계측 비용 산출
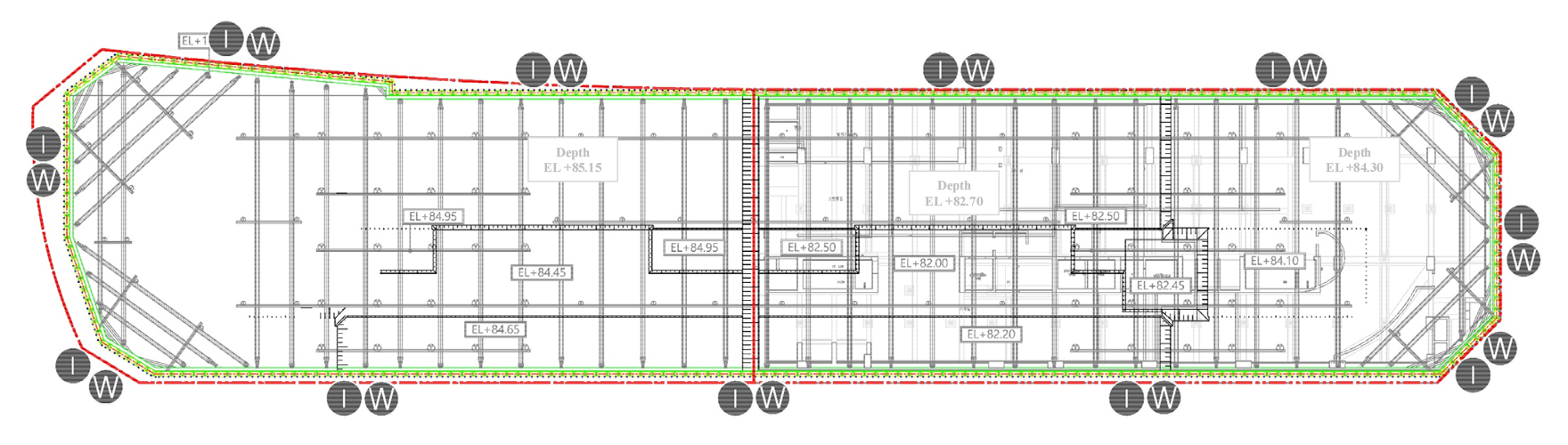
시공 중 벽체의 흙막이 벽체의 계측을 수행하여 안정관리 업무를 진행하고 있다. 계측은 크게 수동계측과 자동계측으로 나눌 수 있으며, 공사현장의 크기 및 계측업무의 예산에 따라 수동과 자동계측을 같이 진행하고 있다. 본 연구에서 공사비, 계측비용 및 복구비용 분석을 위해 선정한 현장은 수도권에 위치한 오피스텔 신축공사 현장으로 그 평면도는 Fig. 2와 같다. 벽체는 C.I.P(Cast In Place)공법으로 이루어져 있으며 지지공법은 Strut공법으로 가정하였다. 현장의 크기는 약 3,216.69m2의 면적을 가지며, 공사 종료 후 굴착깊이는 27m로 설정하였다.
3.1.1 수동계측 비용 산출
시공 중 벽체의 안정성을 판단하기 위해 지중 경사계와 지하 수위계를 설치하였다고 가정하였다. Fig. 3와 같이 각각 12개의 계측지점에 설치하였으며, 주 2회 수동계측을 통해 주간 및 월간 보고를 진행한다고 가정하였다. 건설현장에서 벽체의 붕괴 및 안전성을 판단할 때 지중경사계를 통해 수평변위를 측정해서 확인하고 있다(Ahn et al., 2014). 또한, 굴착 전 지반의 불교란 상태에서 설치하여 굴착으로 인한 구조물의 변위의 범위 및 이완 영역을 파악하기 위해 지중경사계를 설치하며, 수동계측비용 산정을 위해 설치한 지중경사계의 사양은 Table 2과 같다. 또한 지반의 수위변동 등의 자료를 수집하고, 수압의 변화를 파악한다. 이를통해 수평거동의 영향성을 고려하여 사면의 안정성을 확인하기 위한 목적으로 지하수위계를 설치하고 있다. 설치를 가정한 지하수위계 사양은 Table 3와 같다. 이를 사용하여 12개월의 공사기간을 가지는 현장에 대해 수동 계측 시 약 9346만원의 비용이 발생하는 것으로 산정되었다(Table 4).
Table 2.
Inclinometer used for manual measurement
| Contents | Specification | |
| Casing material and size | ABS / O.D=60mm±0.2, 3m | ![]() |
| Example model | 2 MEMS Accelerometer | |
| Measuring range | ±30.0 degrees | |
| Resolution | 0.01mm | |
Table 3.
Groundwater level meter used for manual measurement
| Contents | Specification | |
| Casing material and size | ABS Plastic / O.D=30mm, 4m | ![]() |
| Example model | Casagrande Type | |
| Measuring range | 50m | |
Table 4.
Cost for manual monitoring
3.1.2 자동계측 비용 산출
자동계측에 사용된 계측장비는 수동계측에서 사용한 장비와 동일하며, 이에 자동화센서를 구축하여 계측을 실시하였다고 가정하였다. 지중경사 측정을 위한 자동화 센서는 MEMS(Micro Electro-Mechanical Systems) 센서를 사용하였으며, 지하수위를 측정하기 위한 자동화 센서로 진동현식(Vibration) 센서를 사용하였다고 가정하였다. 수동계측과 달리 자동지중경사계와 자동수위계의 자동화 구축비용 및 실시간 분석을 위한 통신비 데이터로거 비용 등이 추가되었다. 공사기간을 수동계측 시나리오와 동일하게 12개월로 가정하였으며, 12개의 계측지점에 대해 측정하였다고 설정하였다. 매시간 자동으로 측정한 데이터를 기준으로 주간 및 월간보고서를 작성하여 시공사에 보고하는 것으로 가정하였으며, 이에 대한 자동계측비용은 약 3억 266만원이 발생하는 것으로 산정되었다(Table 5). 이는 수동계측에 비해 3배 이상의 비용이 발생하게 되지만 공사기간이 길어질수록 자동계측이 경제적일 수 있다(Baily et al., 2014).
Table 5.
Cost for automatic monitoring
3.1.3 혼합계측 비용 산출
굴착지반의 특성에 따라 흙막이 벽체 운영 시 우각부에서의 구조적 안정성은 직선부분에 비해 불안한 것으로 판단된다(Yoon et al., 2013). 따라서 자동계측과 수동계측 혼합 운용 시 Fig. 3에서의 우각부인 4곳의 계측지점에 자동계측, 이외의 지점을 수동계측을 통해 안전관리를 진행하였다고 설정하여 비용을 산출하였다. 계측기간은 12개월로 앞서 자동 및 수동계측과 동일하며, 자동계측에 대한 보고는 매시간 자동으로 측정한 데이터를 기준으로, 수동계측에 대한 보고는 8개월 간 주 2회 측정한 값에 대해 분석하였으며, 4개월 간 주 1회를 수동으로 측정하여 분석한 것으로 가정하였다. 산정결과 총 약 1억 7800만원이 발생하는 것으로 산정되었다(Table 6).
Table 6.
Cost for Manual-Automatic Hybrid monitoring
3.2 굴착공사 사고 시 공사기간 및 공사비용 산정
사고 사례는 Table 7과 같이 C.I.P.에서의 7m, 13m, 20m 굴착 시 흙막이 가시설 벽체에서의 소규모, 중규모, 대규모 파괴가 발생하는 것으로 가정하였으며, 인접건물 피해 및 사업비(PF) 관련 비용 및 공사중지기간 소요비용을 제외한 순수 공사비만을 고려하여 산정하였다. 또한 공사기간과 공사비용의 산정 기준은 국내 시공사의 실적공사비 기준을 반영하여 산정하였다.
Table 7.
The scenario of retaining wall destruction
가정한 굴착공사의 주요공정은 현장개설, C.I.P 벽체 설치, 그라우팅 공법을 이용한 차수공법, 받침보 및 복공용 Post-Pile 설치, 굴착공사, 복공판 설치, 굴착면 정리 및 영구배수 및 바닥정리 순으로 진행된다. 00건설에서 산정한 초기 공사 기간은 Table 8과 같다. 벽체의 사고가 발생하지 않았을 때 지하 굴착에 대한 공기는 대략 10개월 정도 소요예상 되었으며, 이후 지하공간에 대한 건축공사를 실시할 수 있다. 또한 공사비용은 직접공사비용과 간접공사비용으로 나눌 수 있으며, 직접공사의 경우 세부 공종별로 시공에 직접적으로 소요되는 비용을 의미하며, 간접공사비용은 시공을 위해 소요되는 법적 경비 및 보험료, 안전관리비 등을 의미한다. 사고가 발생하지 않았을 때 산출한 공사비용은 Table 9와 같다. 직접공사비용은 8개의 공정에 대해 합산한 비용으로 총 69억 4600만원 정도로 산출하였으며, 간접공사비용은 1억 3000만원으로 산출하였다. 세금을 포함한 총 비용은 77억 8400만원으로 산정되었다.
Table 8.
Original excavation (Completion) planned period
Table 9.
Estimated construction cost statement
Table 7의 3가지 사고예상 시나리오를 통해 공사 비용 및 공사 기간을 산정하였다. 3가지 Case 모두 지하 굴착 후 지반의 안정성 증대를 위해 지지공법인 strut를 설치 및 굴착 중 파괴가 발생하였다고 가정하였다. 사고 발생 시 복구기간을 산정하여 공사기간 연장을 계산하였다. 복구기간 중 공정으로 C.I.P, 무너진 토사 복구에 대한 기간을 고려하여 계산하였다. Case1은 공사 시작 후 6개월 뒤, 2단 Strut 시공 중 사고가 발생하는 것으로 가정하였으며, 이에 대한 복구 기간은 4개월로 공사기간 연장을 야기하였다. Case2은 공사 시작 후 7개월 뒤, 4단 Strut 시공 중 사고가 발생하는 것으로 가정하였으며, 이에 대한 복구 기간은 5개월로 총 5개월의 공사기간 연장을 야기하였다. Case3은 공사 시작 후 8개월 뒤, 6단 Strut 시공 중 사고가 발생하는 것으로 가정하였으며, 이에 대한 복구 기간은 7개월로 공사기간 연장을 야기하였다(Table 10).
Table 10.
Construction period in case of an temporary work accident
굴착공사비에 대해 초기 공사비용 대비 Case 별 14.8, 67.0, 82.5% 증가하였다(Table 11). Case1의 초기 굴착 상태에서는 복구비용이 비교적 적게 발생하였지만, 굴착공정이 진행될수록 공사비용의 비약적인 증가가 발생하였다. 복구비용에 포함되지 않은 인접건물 피해, 사업비 등을 포함 시 이보다 더 많은 복구비용이 발생할 수 있다. 이와 같이 흙막이 벽체에 대해 사고 발생 시 천문학적인 금액이 발생하며, 복구기간 역시 사고관련 조사에 따른 공사중지기간은 제외하였으며, 이를 포함하여 공사비용을 산출한다면 더욱 증가할 것으로 보인다. 이와 같이 굴착공사 공종은 위험요소가 가장 많으며, 사고 발생 시 시공사에게 매우 큰 부담을 줄 수 있다.
Table 11.
Estimated construction cost statement of an temporary work accident
3.3 사고 비용과 계측 비용 상관관계 분석
사고가 발생하기 전 총 공사비용(77억 8천만원)에 대해서 자동계측, 혼합계측, 수동계측의 비율은 각각 3.89%, 2.29%, 1.20%로 산정되었다(Fig. 4). 소규모의 사고(Case1)에 대해서 계측비용을 비교하여 보았을 때 자동계측은 약 사고로 증가된 비용에 30%, 사고 발생 시 공기 증가에 따른 총 공사 비용에 5%를 차지하게 된다(Fig. 5). 하지만 중규모(Case2) 및 대규모 사고(Case3)에서는 계측비용에 비해 급격하게 사고처리 비용이 증가하여 공사비용 중 계측비용이 차지하는 비율이 3가지 케이스 모두 1-2%에 수렴하는 모습을 보인다. 또한 사고로 인해 증가된 비용에서 계측비용이 차지하는 비율은 5% 미만으로 수렴하는 경향을 보인다.
4. 결 론
본 연구는 가상의 공사현장을 선정하여, 실무에서 적용하는 기준으로 계측비용 및 공사비용을 산정하고, 계측비용이 공사비용에 미치는 영향을 분석하였으며, 굴착 중 사고 발생을 대, 중, 소규모 3가지 케이스로 가정하여 사고 시 복구 비용 및 재시공 비용을 추정하였다. 이를 통해 사고 발생 후 총 공사비용에서의 계측비용의 영향을 분석하였다. 본 연구를 통해 다음과 같은 결론을 도출할 수 있다.
실무에서 총공사비용에 대한 계측비용으로 1.0% 정도 사용하고 있지만, 본 연구를 통해 계측비용을 증가시켜 안전관리를 진행할 수 있는 척도로 사용할 수 있다.
설계 시 공사현장의 안전관리를 위해 계측종류를 선택할 때 설계사 및 시공사가 자동계측에 따른 공사비용의 부담을 느낄 수 있지만, 사고발생 시 증액되는 공사비용에 비해 계측비용의 영향은 매우 미미한 영향을 미친다. 따라서 자동계측을 통해 공사현장의 안전관리를 진행하여, 사고를 방지하는 방향이 수동계측보다 경제적일 수 있다.
굴착 중 사고 발생 시 심도가 깊어짐에 따라 복구 비용 및 재시공 비용이 비약적으로 증가하며, 대규모 사고 발생 시 초기 공사비용보다 80% 이상 증액된 비용이 발생하게 된다. 또한 공사 기간 또한 70% 이상 증가하고 이에 따른 인건비, 인접구조물 보상 비용 등 다양한 요소를 고려하여 산정한다면, 이보다 더 많은 사고비용이 발생할 수 있다.
본 연구에서는 실무에서 일반적으로 계측에 사용하고 있는 수동계측 및 자동계측에 대한 비용을 산출하였지만, 무선통신을 사용하는 스마트 계측 시스템 도입을 통해 현장의 안전관리를 실시하면 계측비용을 줄이고 현장의 안전관리를 효율적으로 진행할 수 있을 것으로 판단되며, 이에 대한 추가 연구가 필요하다고 판단된다.









