1. 서 론
석축이나 콘크리트 등의 경사옹벽은 하천과 소하천 및 도로주변을 따라 예전부터 지속적으로 사용되어온 구조물 중의 하나이다(Oh et al., 2003). 그러나 이와 같은 기존 옹벽구조물의 경우에는 구조적인 안정성 확보가 가능하지만, 최근의 환경친화적 공법을 지향하는 사회적 흐름에는 부합하지 못하는 경우가 대다수이다.
이에 안정성을 확보함과 동시에 경제성, 시공성 및 환경성까지 고려할 수 있는 다양한 친환경적 옹벽 구조물이 개발․적용되고 있다. 그 중에서 대표적인 구조물이라 할 수 있는 식생옹벽은 중․대형 블록 내에 식재를 통한 자연스런 경관 연출 및 공기단축의 장점을 가지고 있다. 또한 높이가 낮은 옹벽시공이 필요한 경우에는 벽체의 기울기에 따라 지반 내에 보강재 포설이 불필요한 경우도 있기 때문에, 많은 적용이 이루어지고 있다(Kang, 2013; Lee, 2013; Nam, 2015). 그러나 여러 장점에도 불구하고 설계 및 시공상의 부주의로 인하여 종종 붕괴가 발생하는 경우가 있기 때문에, 반드시 설계의 정확성 및 철저한 시공관리가 수반되어야 한다(Fig. 1 ).
한편, 보강토옹벽은 뒤채움 지반과 지반 내에 포설된 보강재 및 전면벽체가 일체화됨으로서, 토압 및 외력에 저항하는 구조물이다(Park & Lee, 2012). 이와 같은 보강토옹벽은 우수한 경제성, 시공성 및 안정성을 보유한 구조물로서, 설계 및 시공이 지속적으로 증가하고 있는 실정이다. 이와 같은 보강토옹벽은 과거에 비하여 시공여건이 열악해지고, 시공규모도 대규모화되어 가고 있지만 대부분의 구조물은 보다 안전하고 경제적인 설계 및 시공이 이루어지고 있다(Yoo et al., 2005).
본 연구에서는 도심지 도로확장을 위해 설치된 식생옹벽이 우기철 집중강우 시 일부 붕괴된 후, 지속적인 변형이 발생함으로서 사회적인 직․간접적 피해가 발생한 현장사례에 대하여, 붕괴원인을 분석하였다. 또한 붕괴원인을 바탕으로 현장주변 여건을 고려한 복구공법을 제시하였고, 제시된 복구공법에 대한 안정성을 검토함으로서 그 타당성을 검증하였다.
2. 현장개요
2.1 현장현황
사례현장은 도심지내 기존 2차로 도로를 4차로로 확장하는 사업의 시점부 약 460m 구간으로서 공장 사용 부지 내 자연비탈면을 절취하여 옹벽구조물로 보강하는 구간에 해당한다.
절토부 비탈면에 설치한 식생옹벽은 높이 1.5m~6.0m 정도의 단일 옹벽구조물로서, 총 시공연장은 약 460m이며 붕괴 또는 변형이 발생한 높이 5m 이상의 옹벽 구간은 약 250m에 이른다. 사례현장은 실시설계 결과 식생옹벽의 시공이 예정되었으나, 지반조사 및 식생옹벽의 안정성 검토가 미비하여 시공 전 구조검토를 위한 지반조사를 실시하였다. 그 결과를 바탕으로 흙막이 가시설 설치를 포함한 설계변경이 이루어졌으나 가시설의 해체시 및 해체후의 식생옹벽에 대한 안정성 검토 없이 시공이 착수되었다. 식생옹벽의 시공이 완료된 후 앵커 해체 구간에서 식생옹벽의 붕괴가 발생하였으며 일부 잔여구간에서도 옹벽구조물에 과도한 변형이 발생하였다. 현장조사결과 식생블록의 뒷길이는 약 800mm로서 식생블록과 가시설 벽체간의 간격이 매우 좁아 중장비를 이용한 다짐이 어려웠을 것으로 예상되었다. 실시설계 시 계획된 횡단면도와 적용된 식생옹벽 전면블록의 단면은 Fig. 2와 같다.
한편, 시공 전 실시한 지반조사 결과 매립토층은 최상부층으로 4.8m~11.5m의 두께로 잔자갈(또는 자갈)섞인 실트질 모래 및 실토질 모래 등으로 구성되어 있으며, 비닐 및 플라스틱이 혼재한 상태인 것으로 나타났고, N값은 2/30~25/30으로 대단히 느슨∼보통의 상대밀도로서 습윤한 상태를 유지하고 있는 것으로 확인되었다. 퇴적토층은 일부 구간의 매립토층 하부에 2.0m~2.1m로 분포되어 있으며, N값은 3/30~16/30으로 실트섞인 모래로서 대단히 느슨∼보통의 상대밀도를 나타내었다. 그리고 풍화토층은 매립토층 및 퇴적토층 하부에 0.5m~13.8m의 두께로 실트질 모래 구성되어 있고, N값은 9/30~50/13의 범위로 느슨~매우 조밀한 상태의 상대밀도를 갖는 것으로 확인되었다. 마지막으로 풍화암층은 풍화토층 하부에 1.4m~5.0m의 두께로 분포하며, 심한 풍화를 받은 상태이기 때문에, 굴진 시 실트질 모래로 파쇄되는 것으로 나타났으며, N값은 50/10~50/2로 대단히 조밀한 것으로 확인되었다.
2.2 구조물 붕괴 현황
지반조사 결과를 반영하여 굴착시 배면지반의 활동을 방지할 목적으로 가시설 공법을 추가(설계변경)하였으며, H-Pile+토류벽과 2단앵커(제거식)를 적용하였다. 그러나 시공 후 가시설 해체과정에서 식생옹벽 인접구간에 지반 변형이 발생되었고, 일부 시공구간에서는 가시설 해체를 중지하였다. 이후, 우기철에 집중강우 등의 영향으로 Fig. 3에서 보는 바와 같이 식생옹벽이 일부 붕괴되고 상당 구간에 과도한 변형이 발생되었다.
3. 구조물의 붕괴원인 분석 및 대책공법 선정
본 절에서는 사례현장에서 발생한 식생옹벽의 붕괴원인을 분석하고, 복구대책 방안에 대하여 기술하고자 한다.
3.1 붕괴 원인 분석
기존의 설계보고서 및 시공자료를 바탕으로 문제점을 분석한 결과는 다음과 같다.
먼저, 실시설계 시 공법검토 내용 중 식생옹벽의 시공높이를 최대 5.0m로 제한하고 있으나, 설계도서에는 시공높이가 1.5m~6.0m로 되어 있으며, 실제 시공된 높이는 최대 6.8m까지 나타나고 있다. 또한, 식생옹벽의 안정성 검토 시 전반활동, 저면활동, 전도, 지지력 및 내적활동 등에 대한 전반적인 안정성 검토가 필요함에도 불구하고, 3m 및 5m 높이의 옹벽에 대하여 전반활동의 안정성만이 검토되었다. 따라서 현장여건에 부합하는 설계가 이루어지지 않았으며, 식생옹벽 배면에 적절한 보강재를 설치하지 않아 실제로 작용하는 배면토압에 대한 안정성을 충분히 확보하지 못한 것으로 판단되었다.
두 번째로 실시설계에서는 지반조사를 통한 지층분포 및 지반공학적 특성 평가가 이루어지지 않아 식생옹벽 시공을 위한 굴착공법 선정 및 안정성 검토를 수행하지 않았으며, 설계변경 후에도 가시설 시공+식생옹벽 안을 적용하면서 가시설 해체과정 및 식생옹벽 완료 후의 안정성에 대한 검토가 적절히 수행되지 않았다. 또한, 가시설 흙막이 벽체와 식생블록간의 공간이 협소하여 뒤채움토사의 다짐시공이 어려웠을 것으로 판단되었으며, 집중호우 시 느슨한 지층을 통해 지표수가 유입되어 수압증가 및 지반의 전단강도 감소를 초래하여 식생옹벽이 붕괴되었을 것으로 판단되었다.
세 번째로 식생옹벽 배면의 우수유입 차단 및 유입수의 유도배수를 위한 배수시설이 적절하게 적용되지 않은 점도 구조물 붕괴에 큰 영향을 미쳤을 것으로 판단되었다.
마지막으로 재료 및 다짐기준을 살펴보면, 본 사례현장에 적용된 식생옹벽의 공사시방서는 “한 층의 다짐두께는 블록 한단의 높이를 기준으로 하되 50cm를 초과하지 않도록 한다”, 또한 “뒤채움흙의 다짐밀도는 90% 이상이 되어야 한다”고 제시되어 있다. 그러나 국가 규정인 ‘건설공사 비탈면 설계 표준시방서’에 따르면, 콘크리트옹벽의 되메우기시 충분한 다짐도 확보를 위해 한 층 다짐두께는 20cm, 다짐도는 90~95%로 규정하고 있으며, 보강토옹벽의 뒤채움 다짐두께는 20cm~30cm, 다짐도는 D다짐의 95%로 규정하고 있다. 따라서 사례현장 공사시방서에 규정된 뒤채움 다짐관리 관련 내용은 현행 국가기준에서 요구하는 수준에 부합하지 못한 것으로 확인되었다.
따라서 기존 설계 및 시공 자료만을 활용하여 붕괴원인을 요약하면, 지반의 공학적 특성을 제대로 반영하지 못한 점과 함께, 식생옹벽에 대한 구조안정성 검토 미흡, 설계 및 시공에 있어서 관련규정을 정확히 준용하지 못한 것이 구조물 붕괴의 주요원인으로 분석되었다.
3.2 지반조사 결과 및 식생옹벽 구간의 비탈면 안정성 검토
식생옹벽의 붕괴로 인한 지반의 교란정도를 파악함과 동시에, 구조물의 안정성 검토에 필요한 지반특성을 분석하기 위하여 지반조사를 수행한 결과는 Fig. 4에서 보는 바와 같다.
식생옹벽 붕괴로 인한 사례현장의 지반강도 변화를 파악하기 위하여, 최초 설계 시 지반조사 결과와 붕괴 이후에 실시한 지반조사 결과를 비교 검토한 결과를 요약하면 다음과 같다.
먼저, 매립토층의 경우, 붕괴전에 비하여 N값이 다소 낮은 것으로 나타났는데, 이는 식생옹벽의 붕괴 및 지반변형 발생으로 인해 지반이 교란되었기 때문인 것으로 판단되었다. 풍화토층 및 풍화암층의 경우에는 붕괴 전․후의 N값에 큰 차이가 없는 것으로 확인되었으며, 이는 구조물의 기초지반 역할을 하는 매립토층이 두텁게 분포된 것에 기인해, 구조물의 붕괴가 그 하부지반에 영향을 미치지는 못한 것으로 판단되었다. 따라서 느슨하게 분포된 매립토층이 구조물의 붕괴에 의해 더욱 느슨해짐으로서, 복구대책 적용 시 이를 고려한 설계 및 시공이 이루어져야 할 것으로 분석되었다.
상기에서 기술한 추가적인 지반조사결과를 바탕으로,Fig. 5에 나타낸 붕괴가 발생한 식생옹벽 구간의 4개 대표단면에 대하여 비탈면 안정성 검토를 수행하였으며, 그 결과는 Table 1 에서 보는 바와 같다. 이 때, 적용된 지반강도정수는 붕괴가 발생하지 않은 구간의 강도특성을 반영하여, 구조물 붕괴 이전의 결과와 비교할 수 있도록 하였다.
안정성 해석 결과, 4개의 대표단면 모두 식생옹벽만으로는 구조적인 안정성을 확보하지 못하는 것으로 나타났으며, 이는 앞서 분석된 불분명한 지반조사결과와 식생옹벽의 구조안정성 검토가 미흡한 것으로 분석된 붕괴원인과 일치하는 결과라 할 수 있다.
3.3 대책공법 선정
본 절에서는 붕괴된 식생옹벽 구간에 대하여 다양한 대책공법을 비교․검토하고, 경제성과 구조적 안정성을 동시에 만족하는 적절한 복구방안을 제시하고자 한다. 대책공법은 사례현장의 주변 조건 등을 고려하여, 붕괴된 식생옹벽 및 배면지반 제거에 따른 절취면 안정성 확보를 위한 흙막이 방안과 전면벽체 구축 방안을 검토하였다. 또한 대책공법의 안정성 확보를 위하여 이미 교란된 주변지반에 대한 보강방안도 검토하였다.
3.2.1 흙막이 공법
식생옹벽 붕괴구간의 절취면 안정성을 확보하기 위한 방안으로 흙막이 벽체 및 지보공법의 형식을 비교 검토하였다. 먼저, 연구대상 현장 여건을 고려하여 흙막이 벽체로 강널말뚝, H-PILE+토류판 및 C.I.P(주열식 연속벽)공법의 적용성을 검토한 결과, 현장여건상 지하수위가 높지 않기 때문에, 비교적 경제성과 시공성 측면에서 유리하고 충분한 안정성도 확보할 수 있는 H-PILE+토류판 공법이 본 현장에 가장 효율적인 것으로 판단되었다.
한편, 흙막이에 대한 지보공법으로는 가장 일반적으로 적용되고 있는 쏘일네일링공법과 어스앵커공법을 비교․검토하였다. 검토결과, 본 현장의 경우에는 식생옹벽 붕괴로 인해 배면 지반이 이완되어 있는 상태이기 때문에, 쏘일네일링의 소요길이가 길어지게 되어 시공효율이 매우 감소될 것으로 판단되어, 경제성 및 안정성 측면에서 유리한 어스앵커공법의 적용이 효과적일 것으로 판단하였다.
3.2.2 전면벽체 공법
식생옹벽 구간의 전면을 구성할 벽체조성 방안으로 블록식 및 패널식 보강토옹벽과 철근콘크리트옹벽을 비교․검토한 결과, 주변 현장조건을 고려하여 시공성, 경제성 및 경관성 측면에서 우수한 블록식 보강토옹벽공법의 적용이 바람직 할 것으로 판단하였다. 기존 식생옹벽의 경우에는 연구대상 현장의 일부구간에서 옹벽높이가 5m 이상으로 높기 때문에, 안정성 측면을 고려하여 적용이 불가한 것으로 검토되었다.
3.2.3 흙막이 구조물 배면의 교란지반 보강공법
사례현장은 이미 구조물 붕괴가 발생함에 따라 배면지반이 교란되어 지반의 강도가 상당히 감소한 상태이기 때문에, 블록식 보강토옹벽 시공을 위해서는 배면의 교란지반 대부분을 제거 후에 재성토하는 과정이 이루어져야 한다. 또한 향후 흙막이 가시설 해체를 위해서는 교란지반의 자립을 위한 강도가 확보되어야 하는 상태이다. 이에 흙막이 구조물 배면의 교란영역이 상대적으로 작기 때문에, 현장조건, 시공성 및 경제성을 고려하여 교란지반의 보강을 위한 다양한 공법들을 분석한 결과, 침투성 및 주입성이 뛰어나며, 중첩시공으로 차수효과 확보가 가능함과 동시에 소형장비로 시공이 용이한 침투주입공법을 가장 효율적인 대책방안으로 선정하였다.
3.2.4 복구방안 제안
전술한 바와 같이, 흙막이, 전면벽체 및 지반보강으로 구분하여 검토한 각각의 대책방안을 종합하여 연구대상 현장의 옹벽 높이 및 배면 상태에 따라 4개(Type A, B, C, D)의 대표구간을 선정하였다(Fig. 6).
Type A구간의 경우에는 흙막이 배면측에 구조물이 존재하고 있기 때문에, 가설 흙막이를 이용한 시공이 불가하여 흙막이 구조물을 영구식 앵커를 이용한 영구벽체로 사용할 수 있도록 계획하여 안정성을 확보하도록 하였으며, 이에 대한 대표단면은 Fig. 1(a)와 같다. 이 외에 type B, C, D는 제거식 앵커를 이용한 가시설 흙막이 구조물을 적용하는 방안으로 선정하였며, D구간의 경우에는 옹벽높이가 높지 않아 1단 앵커로 적용하였다.
4. 대책공법의 안정성 검토
4.1 비탈면 및 흙막이 구조물의 안정성 검토 결과
배면지반의 교란된 영역에 대하여 보강여부에 따른 안정성을 확인하기 위해 흙막이 적용 단면에 대한 비탈면 안정해석을 수행하였다. 안정성 검토 단면은 영구벽체가 적용된 type A와 제거식 앵커가 적용된 가시설 흙막이 적용 단면 중 평균적 높이를 갖는 type C에 대하여 수행하였다. 이때 지하수위 조건은 측정결과를 활용하여, 굴착면하부 GL(-)6.5m로 적용하였으며, 상부 지반에 존재하는 실재하중 조건을 고려하였다. 안정성 검토에 적용된 지반정수는 Table 1에 나타낸 바와 같고, 산정된 지반정수는 3.2절의 지반조사 결과를 활용하였다.
흙막이 공법이 적용된 상태에서의 비탈면에 대한 안정성 해석결과는 Table 3, Fig. 7 및 Fig. 8에서 보는 바와 같다. 구조물의 붕괴 후에 교란된 지반의 상태를 그대로 적용하는 경우, 건기시 및 우기시 모두 기준안전율을 만족하지 못하는 것으로 확인되었지만, 교란영역에 대한 보강 후에는 기준안전율을 만족하는 것으로 나타났다. 이와 같은 결과는 붕괴영역의 제거 및 흙막이 시공에 앞서, 배면지반의 교란영역을 소요강도까지 보강해야 함을 의미하는 것으로 판단되었다.
한편, 대책공법으로 적용되는 흙막이 구조물에 대한 구조적 안성성은 탄소성 해석방법이 적용된 범용 프로그램으로 수행하였다. 앞서 언급한 4종류의 대표 단면에 대한 H-pile 및 띠장의 휨응력과 전단응력, 벽체 근입깊이, 배면지반 침하량 및 벽체 변위량은 허용기준에 만족하도록 구조안정성 검토를 수행하였고, 흙막이 구조물의 구조적 안정성이 확보되어야만 전면벽체 시공이 가능한 점을 고려하여 해석 및 구조계산 결과는 생략하였다.
4.2 전면벽체(보강토옹벽)의 안정성 검토 결과
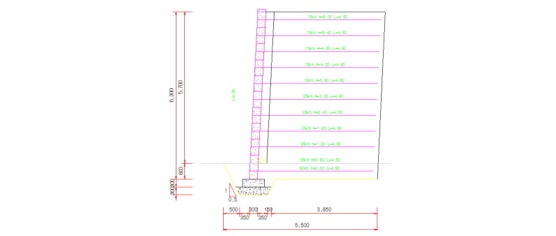
전면벽체 공법으로 제안된 블록식 보강토옹벽에 대한 안정성 검토 결과를 Table 4에 나타내었다. 검토단면은 type B, C, D구간으로 선정하였다. Type A구간의 경우에는 흙막이 벽체와 지보공법인 앵커가 영구구조물로 적용되기 때문에, 보강토 옹벽은 토압에 저항하는 구조물이 아닌 단순히 자립하는 형태의 구조물이므로 본 검토단면에 제외하였다. 각 구간의 구조계산 결과에 따른 보강토옹벽 단면도는 Fig. 9에서 보는 바와 같으며, 안정성 검토 시에 적용된 지반정수는 3.2절의 지반조사 결과를 활용하였다.
Fig. 9의 각 단면도를 이용하여 외적안정성(활동, 전도, 지지력) 및 내적안정성(보강재 파단, 보강재 인발)에 대한 검토결과를 Table 4에 나타내었으며, 이때, 안정성 판단을 위한 기준안전율은 건설비탈면 설계기준을 준용하였다.
한편, 전체활동에 대한 검토는 보강토옹벽을 포함한 전체활동에 대하여 평가가 되어야 하는데, 본 사례현장의 경우에는 4.1절에서 수행한 보강토체 배면의 흙막이 벽체 및 지반보강에 따른 활동에 대하여 이미 안정한 것으로 확인되었기 때문에, 본 절에서는 제외하였다.
각각의 높이에 따른 보강토옹벽은 모든 단면에서 안정한 것으로 확인되었지만, 본 연구대상 현장 특성 상, 배면지반이 주로 투수계수가 비교적 큰 상태임을 고려하여, 굴착면과 성토면 사이, 그리고 전면벽체 배면에서 원활한 배수가 이루어질 수 있도록 별도의 대책수립이 필요할 것으로 판단되었다.
5. 대책공법의 시공 및 계측결과
앞서 제시된 복구방안에 대하여 현장시공을 수행하였으며, 본 절에서는 시공내용 및 구조물의 계측결과에 대하여 기술하였다.
제시된 흙막이 구조물, 블록식 보강토옹벽 및 지반보강공에 대한 시공과정을 Fig. 10에 나타내었다. 먼저, 붕괴가 발생한 기존의 식생옹벽을 철거 및 교란지반에 대한 사토처리를 실시한 후, 구조물의 시공성 확보를 위한 주변지반의 정지작업을 수행하였다. 이 후, 영구식 또는 제거식 앵커보강 기반의 흙막이 구조물 시공이 이루어졌으며, 흙막이 구조물 배면의 일부 교란지반에 대한 그라우팅 보강을 실시하였다. 블록식 보강토옹벽의 시공을 위해서 붕괴 이후의 기초지반 상태를 고려하여 별도의 기초 구조물 시공을 실시한 후에 옹벽 구조물을 시공하였다. 이 때, 블록식 보강토옹벽은 최근에 시공성 및 안정성이 확인된 지지저항 효과를 고려할 수 있는 띠형 섬유보강재를 이용하여 시공하였다. 마지막으로, 구조물에 인접한 지반으로의 우수유입을 방지하기 위한 우수배제공을 시공하였다.
한편, 시공완료 후 약 6개월이 경과한 시점에서 흙막이 구조물 배면지반의 거동을 확인하기 위해 지중경사계를 이용하여 계측한 결과, 최대 약 15mm 정도의 변위가 배면지반 상부에서 발생한 것으로 확인되었다. 이는 관리기준치 이하로서 구조물 재시공 및 지반보강 이후에 지반상태가 안정화된 것으로 판단되었다. 그리고 지표침하 및 인접구조물의 경사 계측을 실시한 결과는 각각 최대 약 5mm 및 거의 발생하지 않은 것으로 나타나 구조물 또한 안정한 상태를 유지하고 있는 것으로 확인되었다.
6. 결 론
본 연구에서는 도심지 도로확장을 위하여 인접 시설에 시공된 식생옹벽이 우기철 집중강우 시에 일부 붕괴된 후, 지속적인 변형이 발생한 현장사례를 이용하여, 그 붕괴원인을 분석하고 현장조건을 고려한 복구공법을 제시하였다. 또한 제시된 복구공법의 타당성을 검증하고자, 안정성을 검토하였으며, 그 결과를 요약하면 다음과 같다.
(1)붕괴가 발생한 구조물의 원인분석 결과, 구조검토 미흡, 구조물 배면의 뒤채움 지반에 대한 불충분한 다짐 및 시공 중 가시설 배면지반의 이완 뿐만 아니라, 설계 및 시공에 있어서 관련규정을 정확히 준용하지 못한 것이 붕괴발생 주요원인인 것으로 분석되었다.
(2)붕괴원인 분석을 위해 추가적인 지반조사결과를 바탕으로 붕괴구간에 대한 비탈면 안정성을 분석한 결과, 붕괴된 식생옹벽은 구조안정성을 확보하지 못하는 것으로 확인되었으며, 이는 붕괴원인 분석결과와 일치하는 것으로 평가되었다.
(3)구조물 및 주변지반의 과도한 변형상태에서 외부 환경조건 및 하중조건 변화에 따라 추가 붕괴가 우려되는 상황임을 고려하여, 현장여건에 따라 영구식 및 제거식 앵커를 이용한 흙막이 구조물, 교란된 지반의 보강방법 및 전면벽체 형성을 위한 보강토옹벽을 바탕으로 복구공법을 제시하였다.
(4)제시된 복구대책 공법을 대상으로 안정성 검토를 수행한 결과, 소요안전율을 확보하는 것으로 확인되었으며, 구조물 시공결과를 바탕으로 본 사례현장에 유효한 대책공법으로 판단되었다.
본 연구결과를 바탕으로 옹벽구조물 시공 시에는 적합한 설계방법 및 기준의 준수, 지반조사의 수행, 구조물의 안정성 검토뿐만 아니라 뒤채움 재료의 적용 및 다짐과 현장상황에 적합한 배수시설 설치 등과 같은 철저한 시공관리의 중요성을 확인하였다.
















